聯系方式
您的位置:主頁 > 應用行業 > 循環水阻垢劑 >

循環水阻垢劑

  很多朋友認為循環水阻垢劑就是阻垢緩蝕劑,其實這樣的說法是不正確的,循環水阻垢劑的成分是什么呢?是由有機膦酸鹽,多元共聚物和緩蝕劑等復合而得,具有良好的化學穩定性和熱穩定性,不易水解??梢钥闯?,緩蝕劑只是循環水阻垢劑里面的成分之一。
 

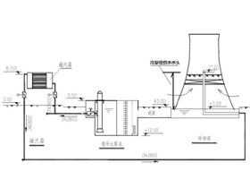
  循環水阻垢劑原理


  同樣也是和反滲透阻垢劑原理類似,同理可參考。
 

  循環水加阻垢劑的作用


  螯合作用,分散作用和晶格畸變作用和三大作用共同是的循環水系統暢通無阻,同時還有防止五金件和管道生銹腐蝕的作用。

  循環水阻垢劑安全技術說明書可參考《阻垢劑化學品安全技術說明書(MSDS)
 

  循環水阻垢劑加藥量計算


  為保證循環水阻垢劑按推薦的加藥劑量注入RO系統,可根據實際情況按以下兩種配置循環水阻垢劑標準。

  1、校準、確定加藥計量泵的實際出力,根據RO系統進水流量和推薦的加藥劑量,先計算出所配循環水阻垢劑的濃度。再根據需配制循環水阻垢劑的體積,計算出配制循環水阻垢劑所需標準液的用量。

  濃度(g/L)=單位時間藥劑標準液注入量(g/h)/加藥計量泵的實際出力(L/h)其中:單位時間藥劑標準液注入量(g/h)=進水流量(T/h)×加藥劑量(g/T,ppm)藥劑標準液用量(kg)=濃度(g/L)×體積(L)/1000(g/kg)。

  2、確定按循環水阻垢劑標準液的某一濃度配制循環水阻垢劑,根據RO系統進水流量和推薦的加藥劑量,計算出所需加藥計量泵的出力,并調整計量泵出力。

  循環水阻垢劑濃度(g/L)=藥劑標準液用量(kg)/體積(L)×1000(g/kg)加藥計量泵的實際出力(L/h)=單位時間藥劑標準液注入量(g/h)/濃度(g/L)其中:單位時間藥劑標準液注入量(g/h)=進水流量(T/h)×加藥劑量(g/T,ppm)。

  通過以上介紹則可輕松計得出一噸循環水加多少阻垢劑,如果是工業循環水通常0.5g-10g每噸,電廠循環水用阻垢劑標準是6.5ppm-20ppm,如果是飲用水3g-5g每噸。但要注意,這里的量指的是干基量,因為循環水阻垢劑有濃度大小之分嘛。

 

循環水阻垢劑展示

  • 12條記錄
  • 產品分類
    按離子度分
    陰離子(APAM)聚丙烯酰胺
    陽離子(CPAM)聚丙烯酰胺
    非離子(NPAM)聚丙烯酰胺
    兩性離子(ACPAM)聚丙烯酰胺
    按外觀分
    聚丙烯酰胺凝膠
    顆粒聚丙烯酰胺
    乳液聚丙烯酰胺
    按場景分
    水處理聚丙烯酰胺
    城市污水用聚丙烯酰胺
    洗煤用聚丙烯酰胺
    洗沙專用聚丙烯酰胺
    造紙廠用聚丙烯酰胺
    污泥脫水用聚丙烯酰胺
    油田鉆井用聚丙烯酰胺
    鋼廠專用聚丙烯酰胺
    印染廠專用聚丙烯酰胺
    其他分類
    聚丙烯酰胺絮凝劑
    高純聚丙烯酰胺
    高分子聚丙稀銑胺
    相關產品
    聚合氧化鋁
    堿式氯化鋁
    聚合氧化鋁鐵
    聚合硫酸鐵